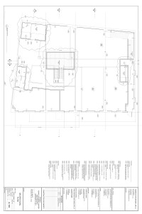
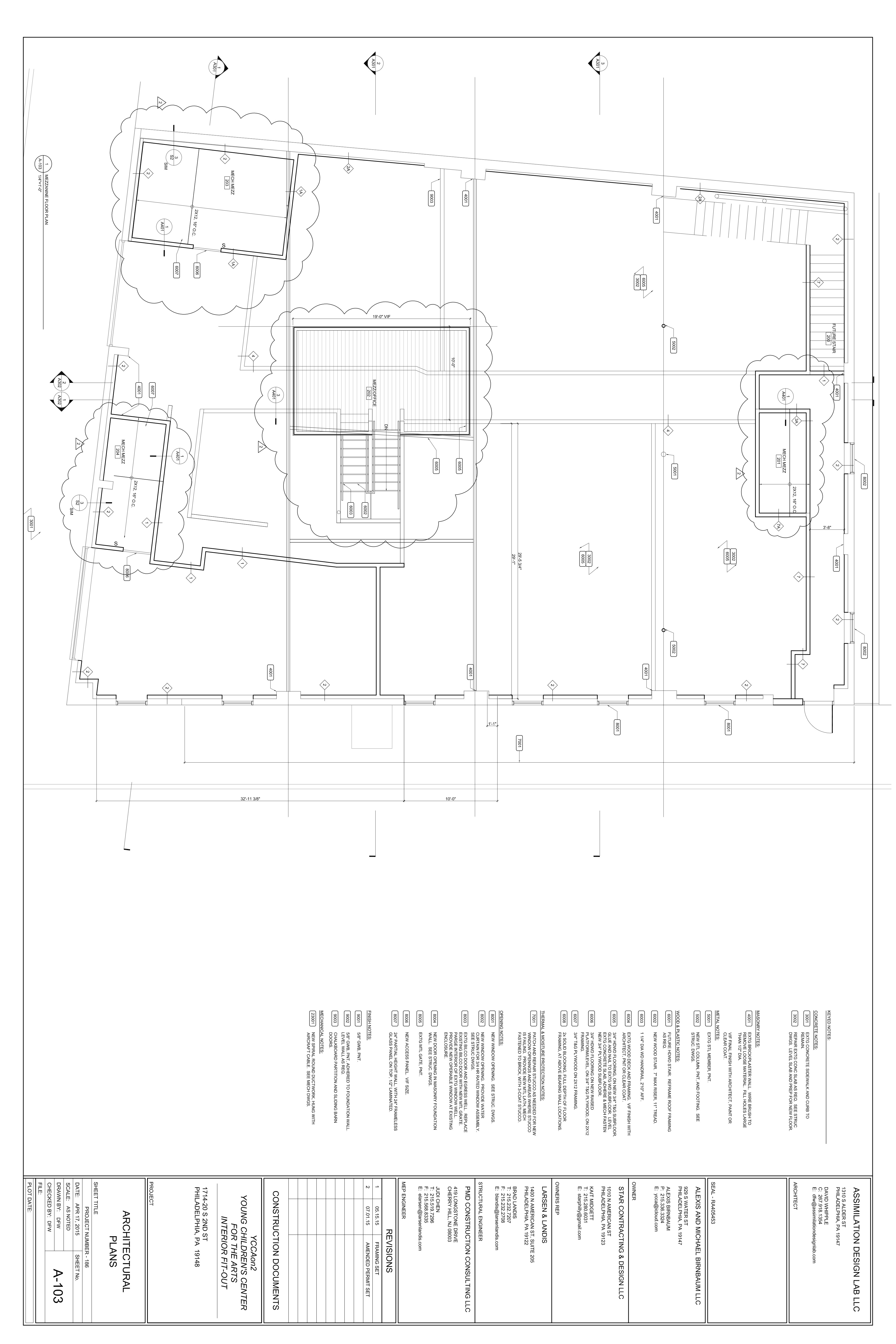
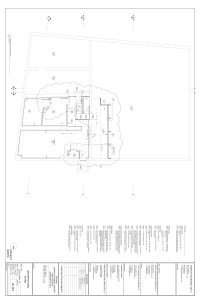
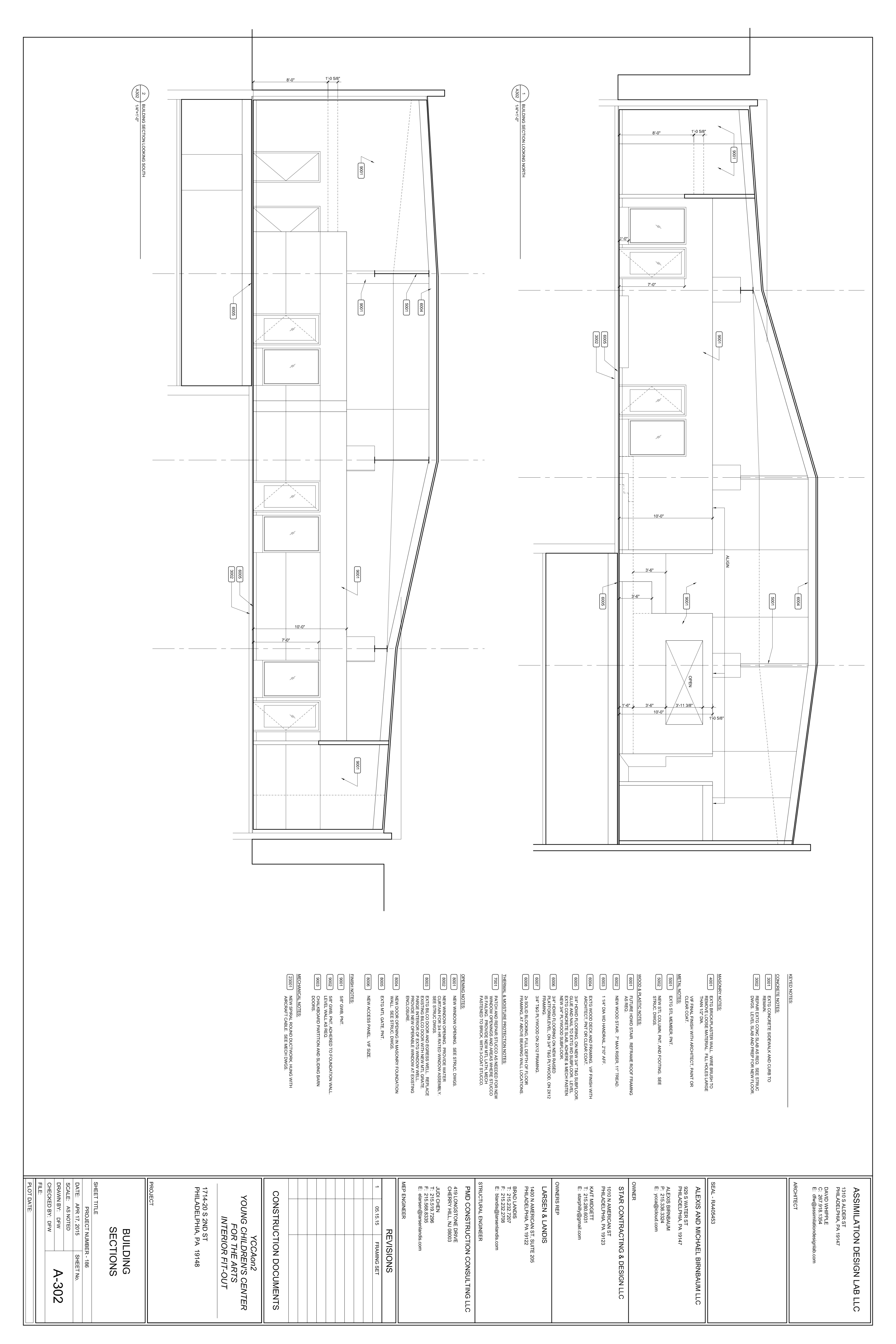
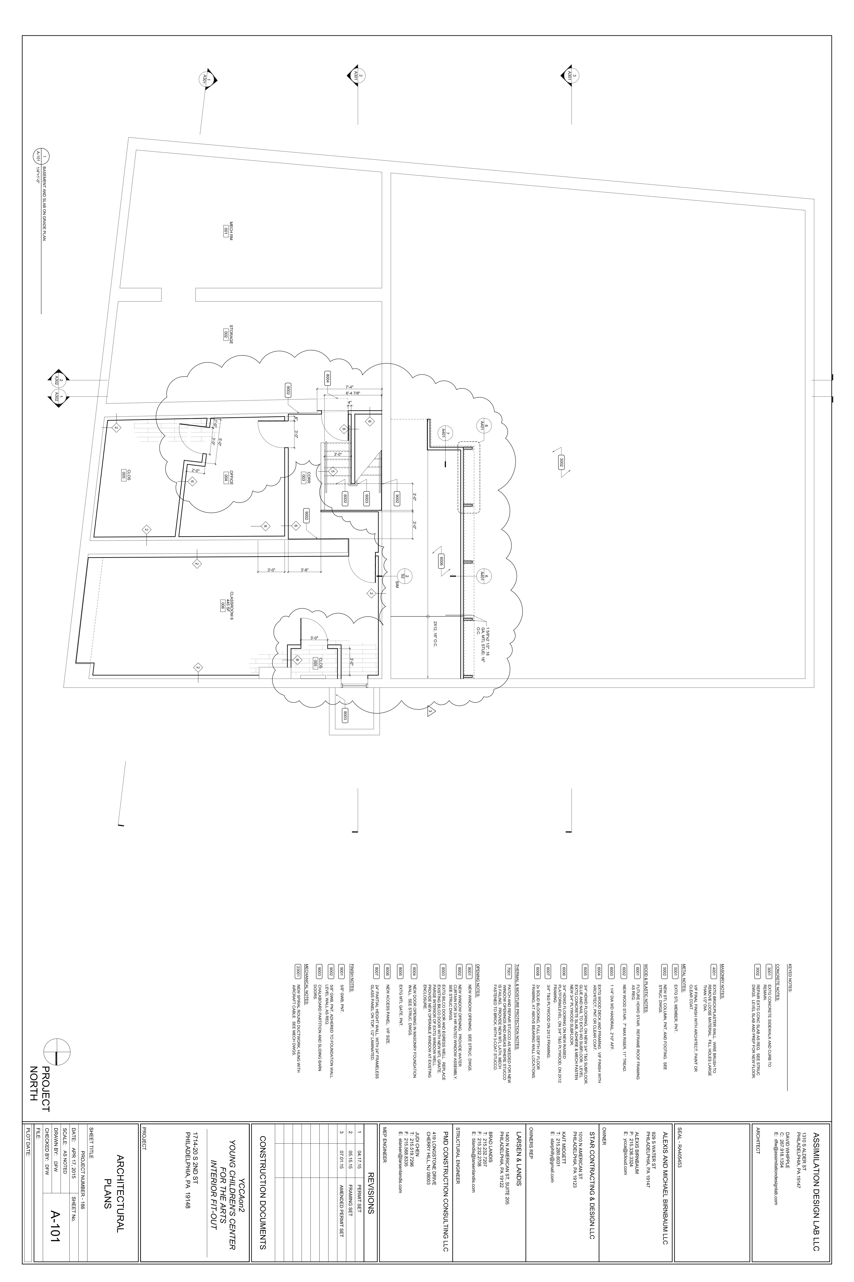
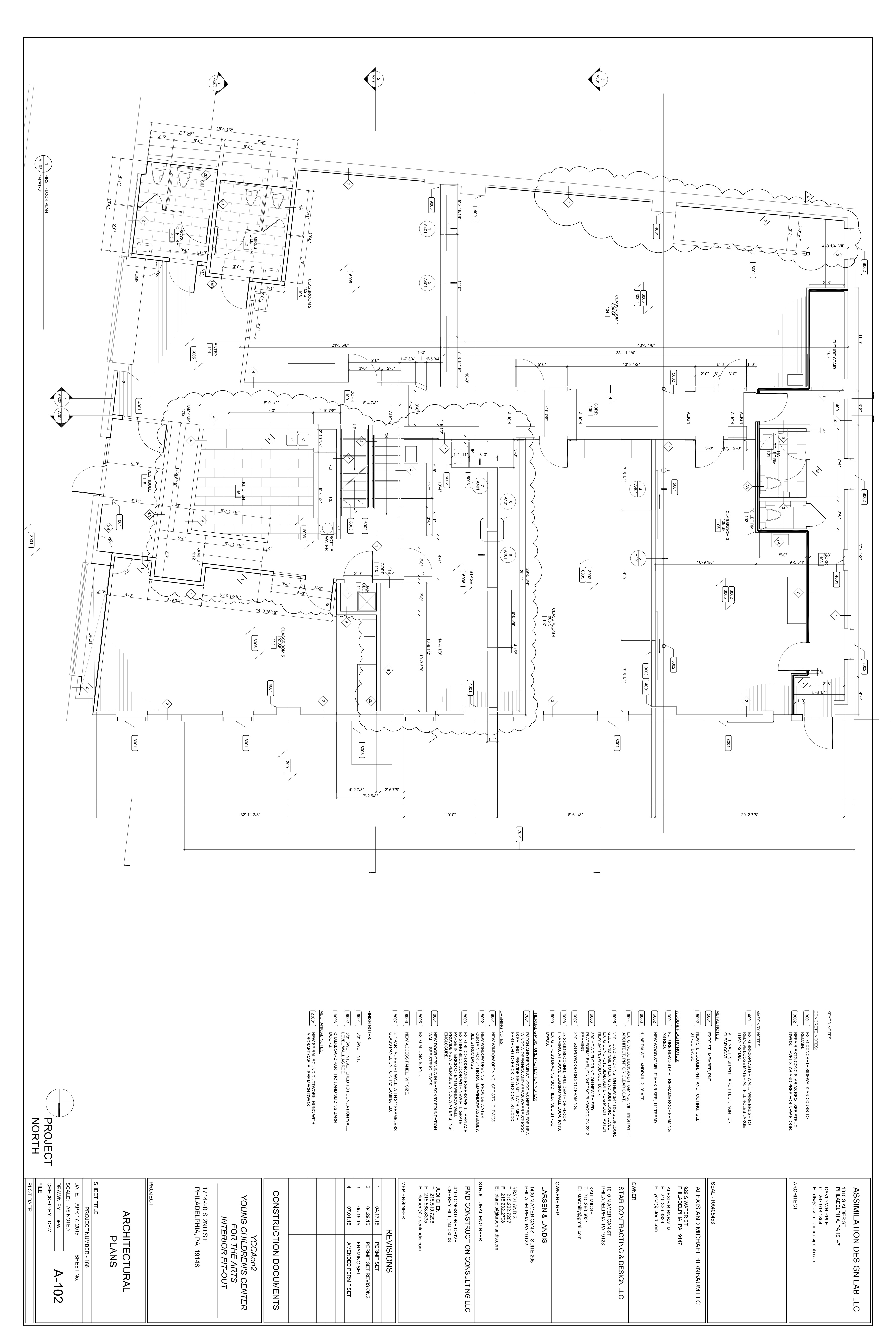
Architectural Permit Plans Posted on July 3, 2015July 3, 2015 by ycca2015 Check out our most up to date architectural permit plans! Share this: Share on X (Opens in new window) X Share on Facebook (Opens in new window) Facebook Like Loading... Related